• 茄子污视频下载,茄子视频懂你更多在线观看,茄子黄色电影,茄子视频APP懂你更多下载

    茄子污视频下载工业茄子视频懂你更多在线观看厂家专业生产工业茄子视频懂你更多在线观看,家用茄子视频懂你更多在线观看,商用茄子视频懂你更多在线观看等产品,欢迎来电咨询定制。 公司简介 | 研发团队 | 网站地图 | xml地图
    茄子污视频下载-精芯除湿·致净生活环境温度湿度系统化茄子黄色电影供应商
    全国咨询热线:133-6050-3273
    您的位置:茄子视频APP懂你更多下载 > 知识百科 > 涂装车间茄子视频懂你更多在线观看:调温茄子视频懂你更多在线观看

    涂装车间茄子视频懂你更多在线观看:调温茄子视频懂你更多在线观看

    作者:CEO 时间:2022-12-15

    信息摘要:调温茄子视频懂你更多在线观看用蒸发器来给空气降温除湿,并回收系统的冷凝热,弥补空气中因为冷却除湿时散失的热量,是一种高效节能的除湿方式,已经广泛应用于国防工程、人防工程、烟草及石化行业、地铁车站、航天领域净化工程、实验室、电讯器材室、档案室、食品房、制药或

    涂装车间茄子视频懂你更多在线观看:调温茄子视频懂你更多在线观看

    涂装车间茄子视频懂你更多在线观看:调温茄子视频懂你更多在线观看

      调温茄子视频懂你更多在线观看用蒸发器来给空气降温除湿,并回收系统的冷凝热,弥补空气中因为冷却除湿时散失的热量,是一种高效节能的除湿方式,已经广泛应用于国防工程、人防工程、烟草及石化行业、地铁车站、航天领域净化工程、实验室、电讯器材室、档案室、食品房、制药或胶片车间、特种玻璃制造、粮食、木材等的除湿干燥和高湿空间的除湿与温度控制等有除湿要求的场所。

      工作原理

      本机具有降温、升温、除湿、通风等功能,用户设定好参数机组自行检测环境温湿度,自动控制恒温恒湿模式运行。用户可根据当前温湿度,或季节变化需要选任一种功能。

      机组原理:

      室内湿空气通过机组蒸发器表面时,因蒸发器温度低于湿空气的露点温度,空气中的水蒸汽便冷凝析出,聚积于接水盘内,由水管排出,空气的含湿量下降。从而达到干燥环境空气,调节室内空气温度的目的

      能耗及温湿度控

      温度控制:温度由微电脑控制器控制制冷系统控制调节;当环境温度大于设定温度加带宽时,压缩机开始工作降温,降到设定值时压缩机停止运行,风机继续运行循环;当环境温度小于设定温度时加带宽,压缩机开始升温,当升到设定值时压缩机停止工作,风机继续运行循环;

      湿度控制:湿度由微电脑控制器控制制冷系统调节。当环境湿度大于设定湿度加带宽时,压缩机开始工作除温,当降到设定值时压缩机停止工作,风机继续运行循环;

      注:控制系统中温度及湿度控制,温度控制优先,经过不断的调节,达到所需的温湿度;

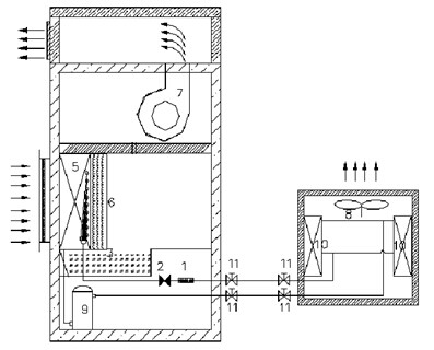
      流程图

      调温除湿流程图.jpg

      1、过滤器2、膨胀阀3、接水盘4、分液头5、蒸发器6、冷凝器7、送风机

      8、散热风机9、压缩机10、风冷冷凝器11、连接阀

      调温茄子视频懂你更多在线观看选用的主要零部件,如制冷压缩机、过滤器等,均采用原装进口名牌产品。机组设有多种自动保护功能。因此,与其他同类产品相比,具有效率高、结构紧凑轻便、运转平稳、操作简便、外型美观、使用寿命长等特点。

      1、防腐处理

      本机组采用高强度钢材做为框架、外形新颖、机构简单合理,安装方便,机组外壳表面做喷塑防腐处理,内部如接水盘等采用防腐型材料,门板内侧、铜管等零部件也覆盖有耐腐蚀性的保温层,有效的增加了产品的使用寿命。

      2、防尘处理

      机组进风口采用初效过滤,有效的避免了生产、使用过程中产生的细小灰尘进入机组,阻塞蒸发器缝隙,而导致除湿效果差、故障频繁等问题。

      3、防火处理

      机组整机防火设计,电线、电气配件等均采用高品质材料,防止机组内部电线、配件老化而引起的起火。另外,机组所有控制电器元件均采集中在配电箱内,采用弱电微电脑控制器,彻底杜绝了因控制电器故障引起的起火。

      4、控制简便

      机组操控采用PLC编程,全中文显示,简单易懂、无需操作培训、只需设置好参数,一键开机。可根据用户设定的温度及相对湿度自动启停、精度高、可靠性好、外形美观。

      5、节能高效

      机组采用风量大噪音低的离心式风机,前进风或后进风上出风设计,使处理空间内更好空气流通更顺畅,除湿效果更佳。

      6、多用功能

      本机具有除湿、降温、升温、通风等功能,在湿度比较大的时候,采用除湿功能,在湿度较小的时候采用通风功能。这样既能满足湿度的要求,又能达到节能的效果

      7、进口配件

      压缩机和主要配件均采用国际著名品牌的产品,通过制冷系统科学合理的优化设计,确保在不同坏境下正常运行。克服了国内同行业机型除湿量不足、机组频繁启动产品故障率高的缺点。同时也提高了产品的使用寿命。

      8、安全保护

      机组配备防爆电控箱,防爆风机,室外机不做防爆处理,控制器具有温湿度显示、故障显示等功能。设有过载、短路、缺相、过热、高压、低压等保护,及风机、防火阀连锁保护。

      调温除湿机是提供一种可以在不同室内、外温度下对室内进行供热、制冷和除湿以满足室内温湿度要求的调温调湿方法及其设备,可以提高除湿调温系统的性能,扩大除湿调温系统的适用范围。

      调温茄子视频懂你更多在线观看采用制冷原理,使空气中的水蒸汽通过蒸发器表面时冷凝析出,降低空气的含湿量,以达到干燥环境空气的目的。广泛适用于对温湿度要求比较高的地下商场,国防工程、车间、仓库、电讯器材库、档案室、文物标本室、洞库等场所。

      1、涂装专用茄子视频懂你更多在线观看有机的结合了冷冻除湿转轮除湿两种除湿方式,是设计先进、运行经济的四季智能型空气处理设备。其中冷冻除湿是利用压缩机制冷,将空气温度降到露点以下,排出冷凝水,使空气湿度降低。

      2、由于水份脱附再生可利用压缩机冷凝余热回收,又会使转轮发热,因此经过转轮除湿后的空气温度会上升,使送入涂装空间的空气相对湿度较低。

      3、在涂装生产工艺中主要以喷砂喷漆为主,而在这些工艺中有效解决金属表面氧化问题,最经济的方法是用涂装专用茄子视频懂你更多在线观看控制涂装环境的空气相对湿度,从而延长封闭空间内金属表面(钢表面)的氧化进程。

      4、涂装专用茄子视频懂你更多在线观看能降低钢材表面露点温度,解决大型钢结构件表面氧化问题,同时防止人员汗水对钢板的重新锈蚀,加快溶剂挥发,保证涂膜及时干燥。

    声明:本站部分内容和图片来源于互联网,经本站整理和编辑,版权归原作者所有,本站转载出于传递更多信息、交流和学习之目的,不做商用不拥有所有权,不承担相关法律责任。若有来源标注存在错误或侵犯到您的权益,烦请告知网站管理员,将于第一时间整改处理。管理员邮箱:y569#qq.com(#改@)
    在线客服
    联系方式

    热线电话

    133-6050-3273

    上班时间

    周一到周六

    公司电话

    133-6050-3273

    二维码
    线
    网站地图